Fishing Lures

Share your models and objects...
User avatar
Jules
Posts: 3144
Joined: Wed Jan 21, 2015 1:36 am

Re: Fishing Lures

Post by Jules » Thu Oct 06, 2016 3:55 am

I guess it's just extruding an offset curve? (I've done offsets, but never tried to extrude one.) The offsets are tricky enough as it is.

User avatar
sthone
Posts: 897
Joined: Tue Jul 08, 2014 8:25 pm
Location: Connecticut
Contact:

Re: Fishing Lures

Post by sthone » Thu Oct 06, 2016 4:06 am

I'm probably not using the correct term but basically I want to draw a sketch (say a fin) and be able to extrude that sketch away from the lure body by .04 and it will contour the extrude the same shape as the lure body. Hopefully that made sense.
____________________________________________________
See my projects at https://www.theneverendingprojectslist.com

User avatar
Jules
Posts: 3144
Joined: Wed Jan 21, 2015 1:36 am

Re: Fishing Lures

Post by Jules » Thu Oct 06, 2016 4:13 am

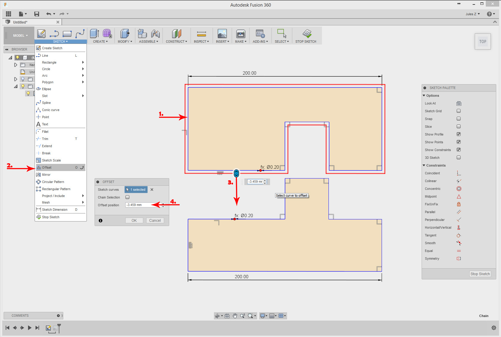
Oh yeah, that's an offset, and it's a bit tricky.

I wrote a thing for it over on another forum....let me see if I can find it.....

The Offset is actually a new line creation, not a modification of an existing path.

The steps are:

1. Double click on one of the lines in the closed shape to select all of the paths in it at once

2. Sketch > Offset

3. Drag the slider in the direction that you want to shift the path

4. Set the value of the offset position

5. Click OK
kerf11a.jpg

User avatar
sthone
Posts: 897
Joined: Tue Jul 08, 2014 8:25 pm
Location: Connecticut
Contact:

Re: Fishing Lures

Post by sthone » Thu Oct 06, 2016 12:47 pm

offset1.jpg
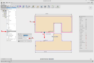
Thanks Jules but that's a sketch offset... I think the term I'm looking for is an "extrude offset from surface". In SW I can draw a sketch on a plane and extrude cut (in this case) into the surface but offset .02 ....
offset2.jpg
...and the cut then follows the curvature of the surface of the model and is only .02 deep allowing me to add detail.
offset3.jpg
Another example... is to draw a sketch (such as the fin) and have it extrude a certain distance (exaggerated here) but still follow the curve of the surface.

This is what I need to do in Fusion but haven't figured it out yet.
____________________________________________________
See my projects at https://www.theneverendingprojectslist.com

User avatar
Jules
Posts: 3144
Joined: Wed Jan 21, 2015 1:36 am

Re: Fishing Lures

Post by Jules » Thu Oct 06, 2016 1:52 pm

No earthly idea! Chuckle!

If you ever do figure out how to do that.....let me know, 'kay?

User avatar
jimc
Posts: 2888
Joined: Wed Apr 09, 2014 11:30 pm
Location: mullica, nj
Contact:

Re: Fishing Lures

Post by jimc » Fri Oct 07, 2016 1:28 am

pretty easy to do in rhino but i got no idea in any other software

User avatar
sthone
Posts: 897
Joined: Tue Jul 08, 2014 8:25 pm
Location: Connecticut
Contact:

Re: Fishing Lures

Post by sthone » Fri Oct 07, 2016 3:25 am

Found this tidbit today which is from a month ago so maybe it's coming.
____________________________________________________
See my projects at https://www.theneverendingprojectslist.com

User avatar
Jules
Posts: 3144
Joined: Wed Jan 21, 2015 1:36 am

Re: Fishing Lures

Post by Jules » Fri Oct 07, 2016 4:48 am

Sweeeeeet! :D

jsc
Posts: 1864
Joined: Thu Apr 10, 2014 4:00 am

Re: Fishing Lures

Post by jsc » Sat Oct 08, 2016 3:39 am

Look what just showed up in today's update:
Screen Shot 2016-10-07 at 10.37.42 PM.png
Screen Shot 2016-10-07 at 10.37.50 PM.png

User avatar
Jules
Posts: 3144
Joined: Wed Jan 21, 2015 1:36 am

Re: Fishing Lures

Post by Jules » Sat Oct 08, 2016 3:42 am

Awesomesauce! :lol:

Post Reply